
Location: New Delhi, India
Design Team : Sahej Bhatia, Sonali Rastogi, Alok D'cruz
Area : 15,000 sq.ft
Project Year : 2014
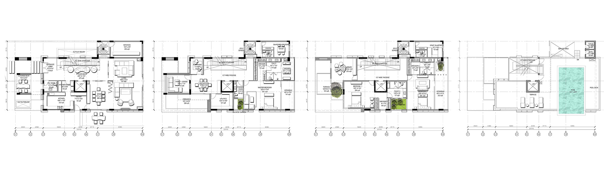
Located in the prime localily of New Delhi’s Lutyens Bunglow zone. The brief was to design luxury villas which would relate to an Indian architectural context but in a contemporary manner. With a build-able area of about 1400 sq.mts. The site was divided into 4 plots, each plot was given a 10M buildable width with 3M setbacks on both sides. The idea was to break the scale of a typical 4 storey apartment using portal frame techniques inspired from gateways used in the Mughal era seen in examples such as the purana quila and red fort in New Delhi. The techniques were further interpreted by British architects in the colonial era examples of which can be observed in the works of Edwin Lutyens and Le Corbusier. Each villa boasted of a double height living area, a cantilevered glass swimming pool and 4 bedrooms spread across 4 floors.
Project developed during training at Morphogeneis, 2014. Involved in Concept design stage till schematic design stage. Plans / elevations / sections / overall morphology / budgeting / vendor / consultant coordination / material pallet explorations. (Morphogenesis owns sole copyright to all images)








